la maison des tilleuls

projet

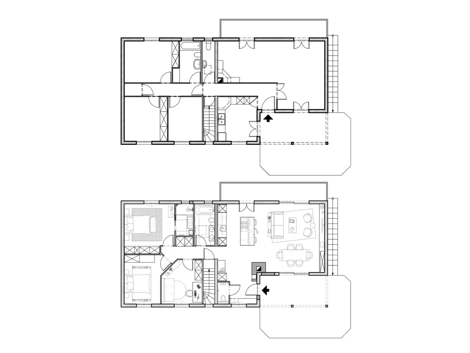
Entièrement rénover et mettre aux normes une maison de 240 m2 pour lui donner une nouvelle vie. Tout repenser pour accommoder les propriétaires dans leurs nouvelles ambitions professionnelles, leur plan d’agrandir la famille et leur amour de la nature et besoin de luminosité. Reconfiguration des espaces et agrandissement de certaines ouvertures extérieures afin d'être tourné vers le jardin, vers les tilleuls, et augmenter la luminosité.

OÙ : Rhône (69)

POUR QUI : Propriétaire

GOÛTS : Epuré / Intemporel

Espaces aérés & lumineux

Connection à l’extérieur

Convivial / Chaleureux

Couleurs douces et

naturelles

Fonctionnel & facile

d’entretien

BESOINS :

  • Cuisine ouverte

  • Entrée avec rangements

  • Grande pièce de vie traversante avec nouvel insert et baies vitrées pour plus de luminosité

  • Suite parentale avec grand dressing et salle d’eau attenante

  • Salle de bain et wc indépendant

  • Bureau de télétravail principal / chambre d’appoint

  • Chambre d’enfant

  • Buanderie à l’étage

MISSION :

  • État des Lieux (EDL)

  • 3 Avant-Projets Sommaires (APS)

  • 1 Avan-Projet Détaillé (APD)

  • Planches déco & visuels 3D

  • Plan éléctrique

  • Conception et plans techniques de meubles sur mesure

  • Dossier de Consultation des Entreprises (DCE)

- réservez un appel de consultation gratuit -