combles aménagés

projet

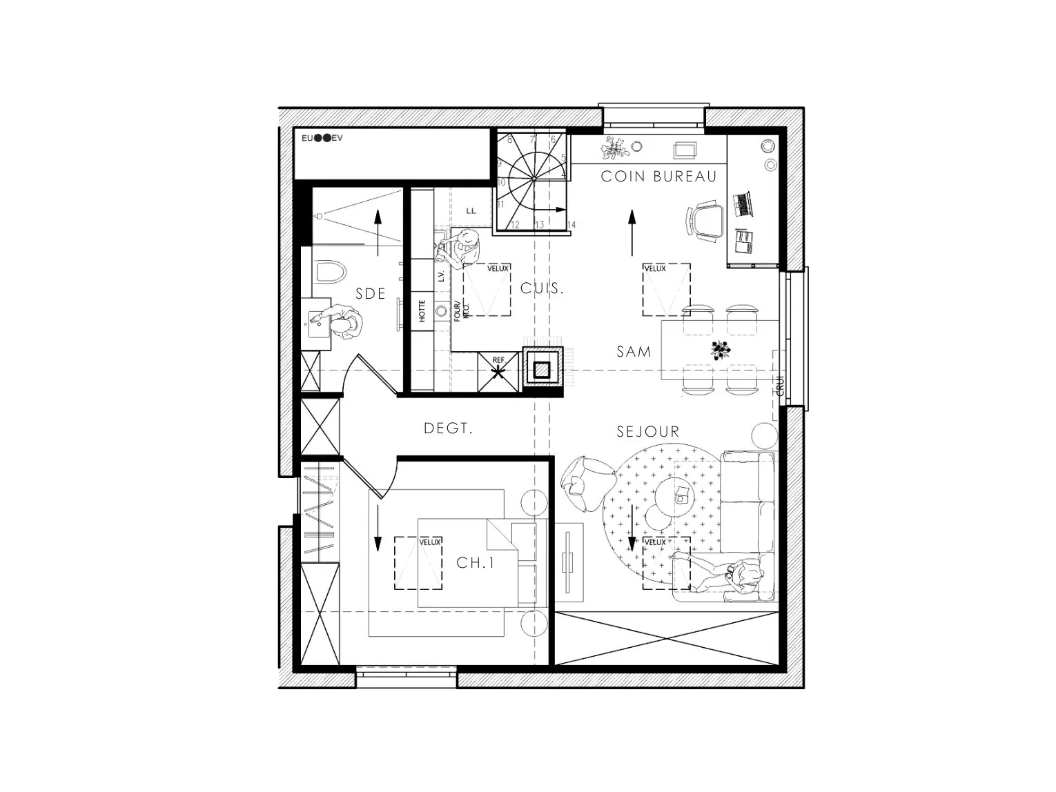
Définir l’agencement d’un T2 indépendant au R+1 d’une maison, avec espace de télétravail, destiné à un usage familial ou locatif de courte à moyenne durée.

OÙ : Vaucluse (84)

POUR QUI : Propriétaire

GOÛTS : Environements rangés & organisés

Luminosité

Ambiance cosy

Couleurs douces et claires

Le bois & connection à l’extérieur

Fonctionnel & facile d’entretien

BESOINS :

  • Création d’une entrée indépendante menant à l’escalier existant (possibilité de déplacement de la trémie)

  • 1 Chambre + dressing

  • 4 Couchages au total

  • Séjour avec rangements optimisés + TV

  • Espace bureau

  • Cuisine équipée

  • Table de repas pour 2 à 4 personnes

  • Salle d’eau + lave-linge

MISSION :

  • État des Lieux (EDL)

  • Cahier des charges

  • Analyse du potentiel

  • 3 Avant-Projets Sommaires (APS)

- réservez un appel de consultation gratuit -