agencement d’un t4

projet

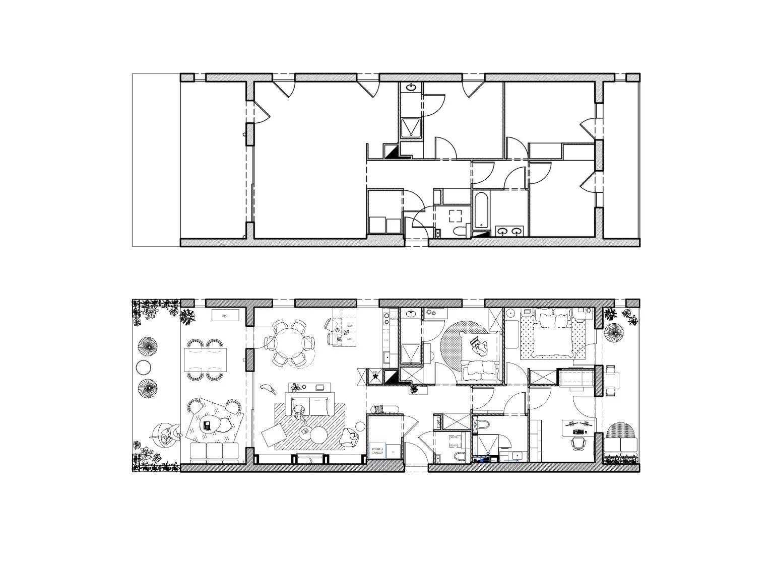
Agencement complet d’un nouveau T4 de 100 m2 en rez-de-jardin recemment aquis. Le client souhaitait un accompagnement personnalisé pour aménager et décorer son appartement selon ses goûts, en créant un lieu de vie organisé, chaleureux, et harmonieux. Une connexion avec l’extérieur, inspirée par une ambiance naturelle, était essentielle. La convivialité, le confort, et l'optimisation du rangement étaient également des priorités pour le client.

OÙ : Rhône (69)

POUR QUI : Propriétaire

GOÛTS : Blanc / Bois

Connection à la Nature

Scandinave / Bohème

Convivial / Cosy

Fonctionnel

BESOINS :

  • Rangements supplémentaires

  • Bureau principal pour télétravail

  • Bureau d’appoint pour fille

  • TV dissimulée

  • Intégrer meubles existants & piano (possibilité de relooker)

  • 2 ème wc si possible

PRESTATIONS :

  • État des Lieux (EDL)

  • 3 Avant-Projets Sommaires (APS)

  • 1 Avan-Projet Détaillé (APD)

  • Planches déco & visuels 3D

  • Plan éléctrique

  • Conception et plans techniques de meubles sur mesure

- réservez un appel de consultation gratuit -